Realizátor
statutární město Prostějov
Rozpočet
3 571 898 Kč
Termín
červen 2025
Financování
rozpočet města
Priority
Životní prostředí
Popis
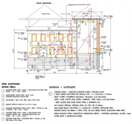
Objekt v majetku města potřeboval vnější zateplení části zděných obvodových stěn dvorního objektu kontaktním systémem (tepelným izolantem polystyrénem). Finální podoba fasády byla provedena roztíratelnou omítkou. Součástí prací byly vyvolané stavební úpravy – výměna dvou oken, výměna jednokřídlových vchodových dveří a nové svody hromosvodu.
V roce 2024 byla dokončena projektová dokumentace zateplení fasády dvorního objektu ul. Rejskova na SOŠPO, zpracovatelkou byla Ing. Ivana Hynková z Prostějova. Náklady na zpracování PD byly 96 800 Kč. Akce byla naplánována k realizaci ve dvou etapách (I. etapa – severní křídlo, tělocvična a II. etapa – jižní křídlo, hlavní budova, středové křídlo, vestavba a nástavba).
V srpnu 2024 bylo vypsáno výběrové řízení na dodavatele stavebních prací pro obě etapy. Dle PD byly náklady odhadnuty na částku cca 4,8 mil. Kč.
Dle sdělení stavebního úřadu stavba nepotřebuje žádné povolení.
V roce 2024 byla naplánována realizace I. etapy s náklady cca 1,7 mil Kč a v roce 2025 druhá etapa za cca 3,1 mil. Kč.
V rozpočtu města na rok 2024 byly schváleny finanční prostředky ve výši 300 tis. Kč.
V srpnu se konalo výběrové řízení na dodavatele stavby obou etap. Nejvýhodnější nabídku předložil pan Josef Řihák z Vacenovic.
V roce 2024 se trvání stavby odhadovalo v délce do 60 dnů od zahájení provádění prací a II. etapa byla naplánována zahájit nejdříve v březnu 2025 s termínem dokončení do 90 dnů od zahájení prací této etapy. Náklady na obě etapy činí celkem 3 571 898 Kč.
Chybějící finance na I. etapu bylo nutné zajistit prostřednictvím rozpočtového opatření, které bylo předloženo do orgánů města (září 2024). Ve druhé dekádě září byla uzavřena smlouva o dílo.
Koncem listopadu 2024 byla I. etapa dokončena.
Rok 2025:
V rozpočtu města na rok 2025 byly vyčleněny finanční prostředky ve výši 2,5 mil. Kč. na realizaci II. etapy. Realizátorem byl opět pan Josef Řihák. Tato etapa byla zahájena koncem března a do května 2025 byla realizována, viz přiložené fotografie.
Příprava - zpracování projektové dokumentace
červenec 2024
Výběrové řízení na dodavatele stavby
srpen 2024
Vyčlenění chybějících finančních prostředků
září 2024
Realizace I. etapy
září - listopad 2024
Realizace II. etapy
březen - červen 2025