Realizátor
statutární město Prostějov
Rozpočet
418 629 Kč
Termín
prosinec 2024
Financování
rozpočet města
Priority
Životní prostředí
Popis
Na části objektu magistrátu nad vstupním schodištěm je střecha s asfaltovou krytinou. V tomto předsazeném prostoru jsou klubovny kulturního klubu DUHA. V sousedství této střechy, která je v letním období hodně rozpálená, jsou kanceláře Odboru sociálních věcí.
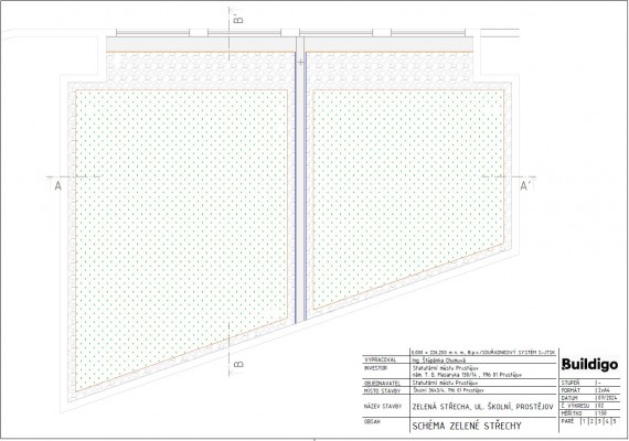
Pro zlepšení větrání okny těchto místností bylo navržena instalace rozchodníkové zelené střechy. Celková plocha střechy je 133,3 m2, z toho bude 98,1 m2 osazeno zelení, zbylá část bude doplněna štěrkovým kačírkem. Kromě estetického efektu má zelená střecha i ekologický přínos.
Pro realizaci zelené střechy byla zpracována projektová dokumentace, které předcházelo technické a statické posouzení konstrukce střechy. Podklady zpracovala fy Buildigo s.r.o. v rámci projektu Lepší města pro budoucnost (dotační výzva Bergen 4a, OPŽP).
Na základě výběrového řízení bude zelenou střechu provádět společnost PFM – Greenvia s.r.o. z Brna za částku 218 646 Kč včetně tříleté péče o zeleň. V rámci samotné realizace může dojít k vyvolaným vícenákladům souvisejících se stávajícím střešním pláštěm (dle posudku je stávající krytina vyhovující).
Na konci října společnost GRÉZA s.r.o. provedla opravu střechy pokrytím izolační fólií PVC, oprava byla provedena za necelých 200 tis. Kč.
Dne 1.11.2024 byla zahájena realizace zelené střechy s předpokladem dokončení do poloviny prosince 2024.
Příprava - posouzení konstrukce střechy, projektová dokumentace
červenec 2024
Výběrové řízení na dodavatele zelené střechy
srpen 2024
Oprava střechy
říjen 2024
Realizace zelené střechy
listopad - prosinec 2024