ZŠ Melantrichova - oprava vodovodních a elektrických rozvodů
Realizátor
Statutární město Prostějov
Rozpočet
4 985 399 Kč
Termín
září 2025
Financování
rozpočet města
Priority
Společnost a volnočasové aktivity
Popis
Záměrem akce je přeložení a výměna venkovních vodovodních rozvodů a oprava stávajících vnitřních vodovodních rozvodů, a s tím spojené předláždění stávajícího chodníku a zpevněné plochy na ZŠ Melantrichova. Dále bude předmětem projektové dokumentace výměna vnitřních elektrických rozvodů, vč. nového osvětlení a podhledů. Součástí je i odstranění stávajícího podhledu, rozvodů a osvětlení.
Stavba bude rozdělena do jednotlivých etap tak, aby bylo možné jednotlivé etapy samostatně realizovat.
V prosinci 2022 se konalo výběrové řízení na zhotovitele projektové dokumentace ve stupni pro stavební povolení. Jedinou nabídku podala společnost Stavtes, Stavebně-technická společnost s ručením omezeným Prostějov s částkou 355 740 Kč vč. DPH s termínem vyhotovení projektové dokumentace do 28.04.2023.
Finanční prostředky byly vyčleněny na radě města dne 10.1.2023.
Informace z projektové dokumentace:
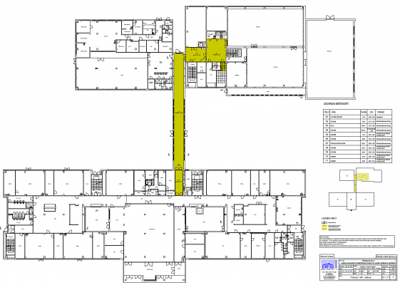
Projektová dokumentace řeší rekonstrukci zpevněných ploch v areálu ZŠ Melantrichova, přeložku části rozvodů vody v areálu školy, výměnu rozvodů vody, elektro a podhledů v prostorách chodeb pavilonu učeben, spojovací chodby a pavilonu tělovýchova.
U zpevněných ploch je navržena výměna stávajících povrchových ploch, které jsou degradovány. Výškově i polohově budou nové zpevněné plochy ve stejných úrovních jako původní plochy.
Rozvod vody bude veden souběžně s rekonstruovaným chodníkem (od stávající vodoměrné šachty po stávající zemní hydrant).
SO 01 – Oprava vodovodních a elektrických rozvodů I. etapa (učebnový pavilon)
Plocha podhledů: 433,9 m2
SO 02 – Oprava vodovodních a elektrických rozvodů II. etapa (pavilon tělovýchova)
Plocha podhledů: 204,6 m2
Pro SO 01 a pro SO 02 platí:
Montáž podhledových konstrukcí bude provedena až po výměně rozvodů vody a elektro v prostoru nad podhledy. Výškově budou podhledy osazeny do výšek původního podhledu.
Nový podhled je navržen v chodbových prostorách objektu základní školy. Je navržena podhledová konstrukce s viditelnými nosnými profily šířky 24 mm, každá deska je vyměnitelná, desky vkládané jednoduše do nosného rastru jsou opatřeny kolmou hranou. Podhledové desky budou z biologicky odbouratelné minerální vlny, jílu a škrobu vyráběné technologií wet-felt.
Po montáži podhledových konstrukcí bude provedeno vymalování stěn v chodbových prostorách, včetně potřebných oprav štukových omítek v místech demontáže původních podhledových konstrukcí. Do výšky ca 1,3m budou stěny opatřeny barevným otěruvzdorným nátěrem (omyvatelným) - syntetická malířská barva. Nad 1,3 m bude stěna opatřena nátěrem bílým (v místnosti 107 bude nátěr barevný). Nad podhledy, kde budou osazeny uzavírací ventily vodoinstalace, bude provedeno na zdivu pod podhledem informační značení.
SO 03 – Zpevněné plochy a přeložka areálového vodovodu
Zpevněná plocha zásobovací: 106 m2
Zpevněná plocha mezi pavilony a chodník: 839,5 m2
Výměna areálového vodovodu PE100 D - 90x5,4, SDR 17 - 57m.
Dešťová voda ze zpevněných ploch bude částečně vsakována do travnatých ploch a částečně odváděna do dešťové kanalizace.
Náklady jsou odhadnuty na cca 9,4 mil. Kč, stavba bude realizována v několika etapách. Na část realizace budou navrženy finanční prostředky do návrhu rozpočtu 2024.
Rok 2024:
V rozpočtu na rok 2024 byla vyčleněna částka ve výši 3 mil. Kč.
V květnu 2024 se připravují podklady pro vyhlášení výběrového řízení na dodavatele stavby - výměna rozvodů vody, elektro a podhledů v prostorách spojovací chodby a části pavilonu tělovýchovy. Odhadované náklady na tuto část jsou ve výši cca 1,84 mil. Kč. Výběrové řízení bylo ukončeno v červnu. Zadavatel rozhodl o zrušení výběrového řízení z důvodu neobdržení žádné nabídky.
Rok 2025:
V rozpočtu města na rok 2025 byly vyčleněny finanční prostředky ve výši 5 mil. Kč. V únoru bylo opět vyhlášeno výběrové řízení na dodavatele stavby.
Vítěznou nabídku předložila společnost Stavitelství Pospíšil s.r.o. z Olomouce s cenou 4 786 880 Kč. Byla uzavřena SOD s tím, že by dílo mělo být dokončeno do 24.8.2025. Stavba byla zahájena v červnu. V průběhu stavby byly zjištěny skutečnosti, se kterými se nepočítalo v PD - bylo nutné osadit nové sekční uzávěry v chodbě D, nové uzávěry studené vody a vypouštění, odstranění a likvidace minerální vaty ve stropních podhledech, oprava omítek v souvislosti s opravou elektrických rozvodů. Došlo tak k navýšení ceny o 198 519 Kč, tj. celková cena je 4 985 399 Kč.
Stavba byla ukončena do konce srpna 2025.
Výběrové řízení na zhotovitele PD
prosinec 2022
Zpracování projektové dokumentace
duben 2023
Výběrové řízení na dodavatele stavby - část
květen - červen 2024, únor 2025
bylo zrušeno z důvodu nepředložení nabídky, možná bude opět vyhlášeno
únor 2025 . opakované výběrové řízení
Realizace stavby
červen - srpen 2025