Výtah v areálu SENZA družstva
Realizátor
statutární město Prostějov
Rozpočet
4 464 594 Kč
Termín
listopad 2025
Financování
rozpočet města
Priority
Společnost a volnočasové aktivity
Popis
V roce 2023 zahájilo město přípravu na vestavbu osobonákladního výtahu do atria stávajícího objektu pro provoz chráněné dílny SENZA družstva na ulici Tylova z důvodu zajištění bezbariérovosti objektu.
Byla zpracovávána projektová dokumentace v období říjen 2023 – září 2024 společností Stavtes s.r.o. za částku 144 837 Kč.
Původní stavba pochází ze 70. let minulého století a její využití byla jako jesle (mateřská škola) se 4 odděleními pro 120 dětí. V přízemí objektu byla vývařovna se zázemím a prádelna se zázemím určené pro provoz MŠ. Na přelomu tisíciletí bylo užívání objektu změněno na chráněnou dílnu – stavba pro řemeslnou výrobu tělesně znevýhodněnými osobami včetně skladování výrobků pro potřeby výroby a montáže.
V přízemí byla ponechána vývařovna a prádelna, která slouží pro provoz vlastního objektu a jako služba pro veřejnost. V patře pak vznikly chráněné dílny se zázemím. Vznikly zde 2 velké dílny a 2 menší dílny. Předmětem provozu v dílnách je kompletování, třídění drobných výrobků a malých součástek, sáčkování, balení, kompletace drobných součástek do větších prvků, které jsou dodávány zkompletované jako polotovar pro další ucelené kompletace do jiných provozů.
V současné době je v provozu chráněných dílen celkem 62 zaměstnanců - pracovníci chráněných dílen, THP pracovníci, skladníci a řidiči rozvozu. (Tento počet neobsahuje pracovníky kuchyně a prádelny). Vlastní pracovníci jsou zaměstnaní na částečnou až celou pracovní směnu. Ve vlastních dílnách pracují převážně tělesně postižení v různém stupni tělesného postižení se schopností uplatnění v pracovním procesu. V současné době je zajištěn bezbariérový přístup do objektu v rámci přízemí, ale do patra není bezbariérový přístup zajištěn.
V současné době není plně pokryt pohyb materiálu z přízemí do patra k výrobě a zpět na odbavení.
Přísun materiálu do objektu je přes nakládací rampu a pak paletovacími vozíky v rámci přízemí objektu.
Objekt disponuje dvěma malými nákladními výtahy (původně obědové výtahy), do kterých je nutno náklad z palet vždy rozebrat a postupně po malých objemech vyvážet do patra, kde je zase ručně přenášen na jednotlivé dílny.
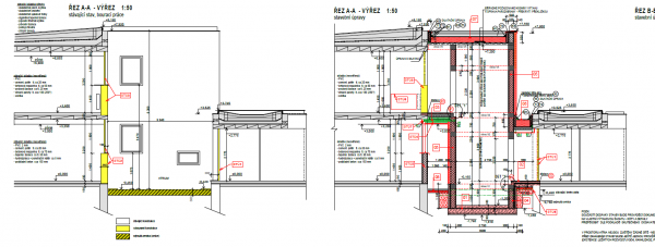
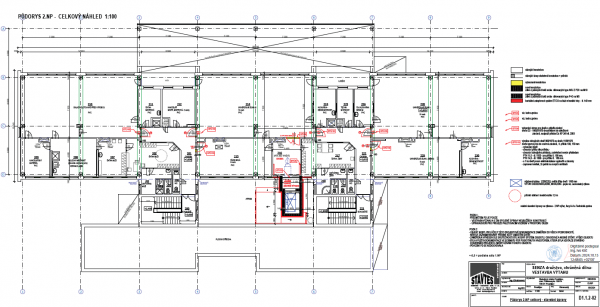
Tři trakty budovy jsou dvoupodlažní, jeden trakt přízemní, trakty jsou uspořádané do obdélníku s vnitřním atriem. Navrhovaná vestavba výtahu je umístěna do atria, přičemž nepřevýší stávající výšky střech dvoupodlažní části objektu.
Navrhovaný výtah umožní plynulý pohyb materiálu na paletovacích vozících přímo z nákladního auta u rampy k výtahu, v patře pak vyjede přímo k dílnám, kde bude umožněn rozvoz paletovacím vozíkem v rámci souběžných dílen a skladu výroby, odtud pak může být ruční roznášení k jednotlivým pracovním stolům. Stejný postup opačně pak bude při vývozu zkompletovaných výrobků určených pro vyskladnění.
Za tímto účelem bude součástí vestavby výtahu i výměna označených dveří ve 2.NP z původních dveří šířky 800 mm na dveře šířky 1100 mm pro umožnění průjezdu paletovacího vozíku. Nosnost výtahu - 1125 kg, Počet stanic/nákladišť: 2/2 průchozí.
Zastavěná plocha stavby zůstane stávající (dle katastru nemovitostí 1312 m2 včetně atria)
Zastavěná plocha výtahem v atriu - 26,63 m2
Obestavěný prostor vestavby výtahu - 180 m3
Náklady jsou dle zpracované PD odhadovány ve výši 4 207 233 Kč.
Koncem října 2024 byla podána žádost o povolení stavby na stavební úřad.
Rok 2025:
V rozpočtu města na rok 2025 byly vyčleněny finanční prostředky ve výši 2 mil. Kč.
V únoru 2025 bylo stavebním úřadem vydáno povolení stavby. V dubnu bylo vyhlášeno výběrové řízení na dodavatele stavby, ale žádný uchazeč se nepřihlásil. Proto bylo vyhlášeno opětovně a v červnu bylo rozhodnuto, že vítězným uchazečem se stala společnost STAMO, s.r.o. z Konice s cenou 4 464 594 Kč. Stavba by měla být realizována do 120 dní od zahájení. K realizaci budou potřeba další finanční prostředky na zajištění činnosti koordinátora BOZP, technického dozoru stavby a dozor projektanta v celkové výši cca 200 tis. Kč.
Stavba by měla být realizována od srpna do listopadu.
Příprava
říjen 2023-září 2024
Povolení stavby
únor 2025
Výběrové řízení na dodavatele stavby
duben - červen 2025
Realizace výstavby výtahu a výměna dveří
srpen - listopad 2025
Kolaudace stavby
???